Beschreibung:
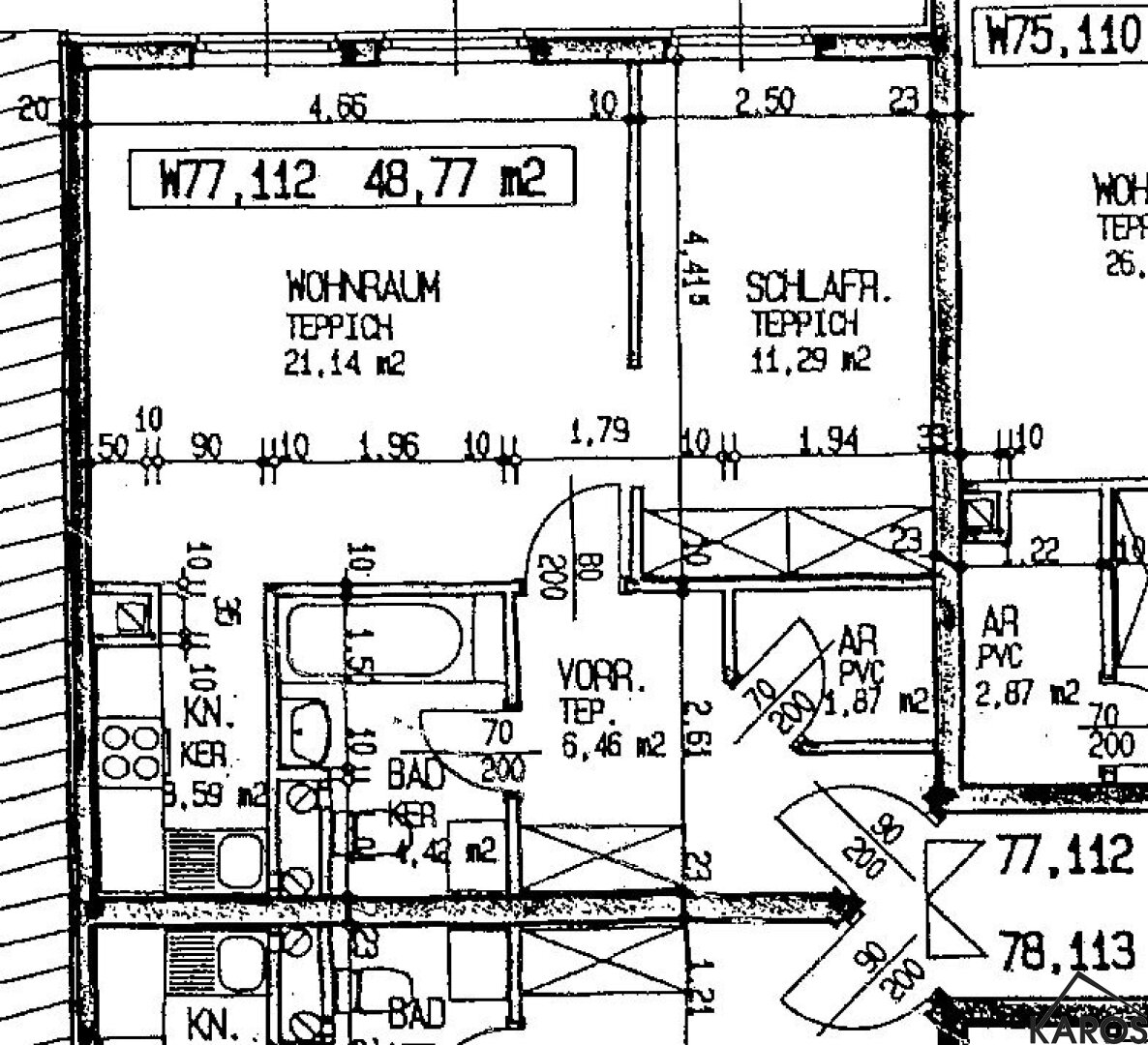
Die im 2. Liftstock gelegene Neubauwohnung mit rund 48 m² befindet sich direkt am Waldmüllerpark und ist für die erste eigene Wohnung perfekt geschnitten.
Die Räume sind weiß gemalt und wirken hell und freundlich.
Sowohl Vorraum, als auch Kochnische und Bad sind mit neutralen Fliesen ausgestattet.
Der Wohn-/Schlafraum ist mit einem Laminatboden ausgestattet.
in Abstellraum bietet genügend Stauraum.
Die Wohnung wird befristet auf 5 Jahre vermietet.
AUSSTATTUNG:
- Küche
- Schrankraum
- Laminatböden
- UPC/Telekabelanschluss
- Heizung und Warmwasser mittels Fernwärme
LAGE:
- Zentrale Lage durch die NÄHE zum MATZLEINSDORFERPLATZ
- DIREKT AM WALDMÜLLERPARK
- Gute öffentliche Verkehrsanbindung: in nur wenigen Gehminuten erreichen Sie bequem Schnellbahn (S1, S2, S3), Bus (14A) und Straßenbahn (6, 18, 62, 65)
SONSTIGES:
Die Nutzung eines Kellerabteiles ist im Mietpreis enthalten.
Garagenplätze sind jederzeit in der hauseigenen Garage zumietbar.
Anfragen bitte über diese Plattform!
Wir weisen darauf hin, dass zwischen dem Vermittler und dem zu vermittelnden Dritten ein familiäres oder wirtschaftliches Naheverhältnis besteht.
Der Immobilienmakler erklärt, dass er – entgegen dem in der Immobilienwirtschaft üblichen Geschäftsgebrauch des Doppelmaklers – einseitig nur für den Vermieter tätig ist.
Hinweis: „Bitte haben Sie dafür Verständnis, dass wir Ihnen aufgrund des Fern- und Auswärtsgeschäfte-Gesetzes - FAGG (BGBI. I Nr. 33/2014), Unterlagen zu unseren Objekten erst dann zusenden können, wenn Sie bestätigen, dass Sie, als Verbraucher, unser sofortiges Tätigwerden wünschen und über die Rücktrittsrechte (§ 11 FAGG) aufgeklärt wurden.


