Neubautraum in Hernals
Rendering © zoomvp
Die Rainer Gruppe hat in der Hernalser Hauptstraße 120, 1170 Wien ein modernes Neubauprojekt mit 20 Mietwohnungen und 2 Geschäftslokalen im Erdgeschoss errichtet.
Ab sofort Bezugsfertig!
Hier geht es zu den einzelnen Wohnungsinseraten:
◇ 20 Neubauwohnungen (davon 5 klimatisierte Dachgeschosswohnungen - Bauteilaktivierung)
◇ 2 klimatisierte Geschäftslokale im Erdgeschoss mit großzügigen Lagerflächen im Keller
◇ 1 großer Hobbyraum im Keller
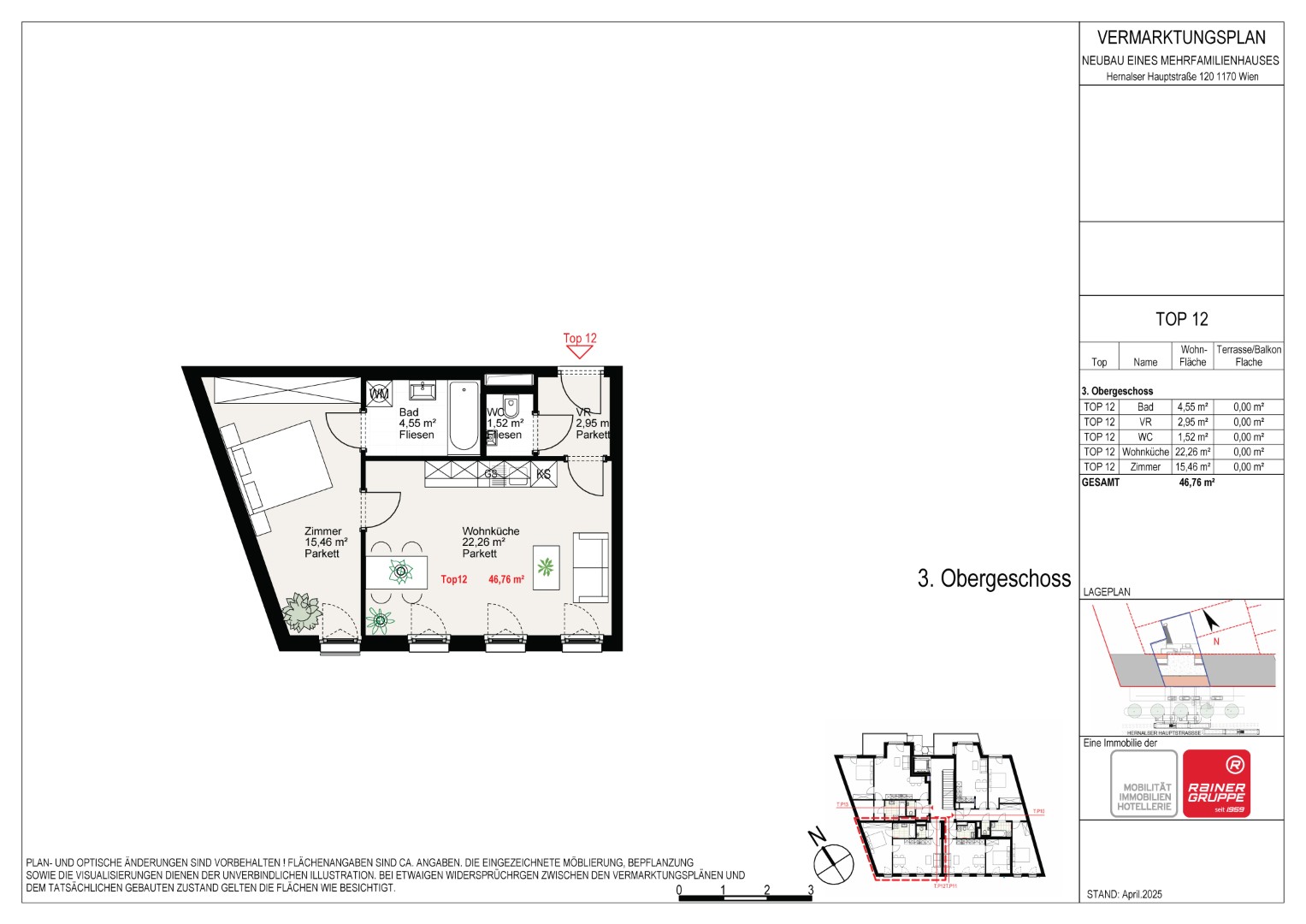
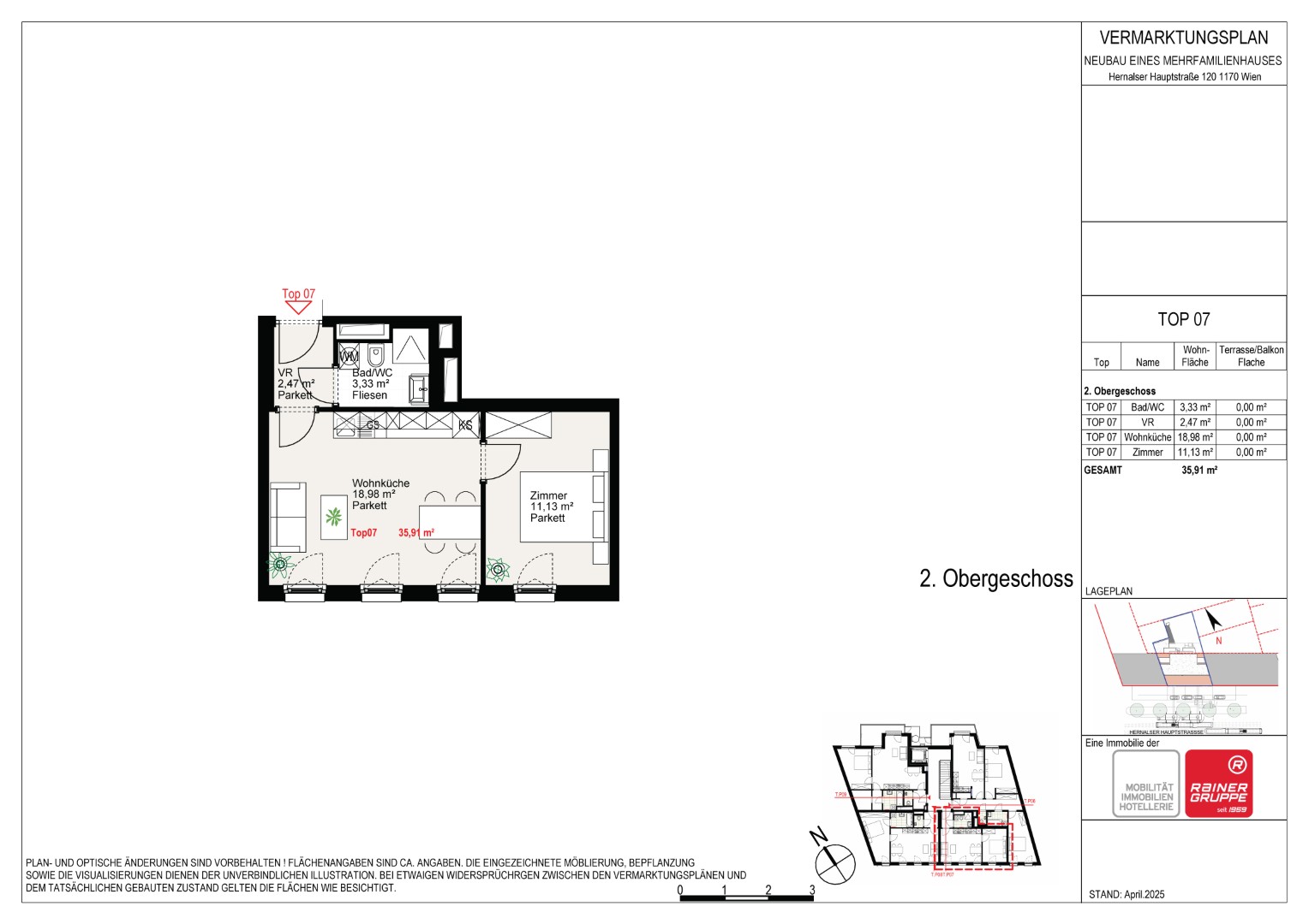
Pläne der Wohnungen:
https://www.k-immo.eu/projekte/heha-120.html#sigProId0cd0c8be45
Pläne der Geschäftslokale im EG und Lagerräumlichkeiten/Hobbyraum im KG:
https://www.k-immo.eu/projekte/heha-120.html#sigProId2de3a2b3a5
Interesse? Hier gelangen Sie zu den freien Wohnungen.
Gerne lassen wir Ihnen auch unter Diese E-Mail-Adresse ist vor Spambots geschützt! Zur Anzeige muss JavaScript eingeschaltet sein! weitere Informationen zu den Mietobjekten zukommen.


