Beschreibung:
HOCHWERTIGE MIETWOHNUNGEN MIT BALKON + EINBAUKÜCHE!!!
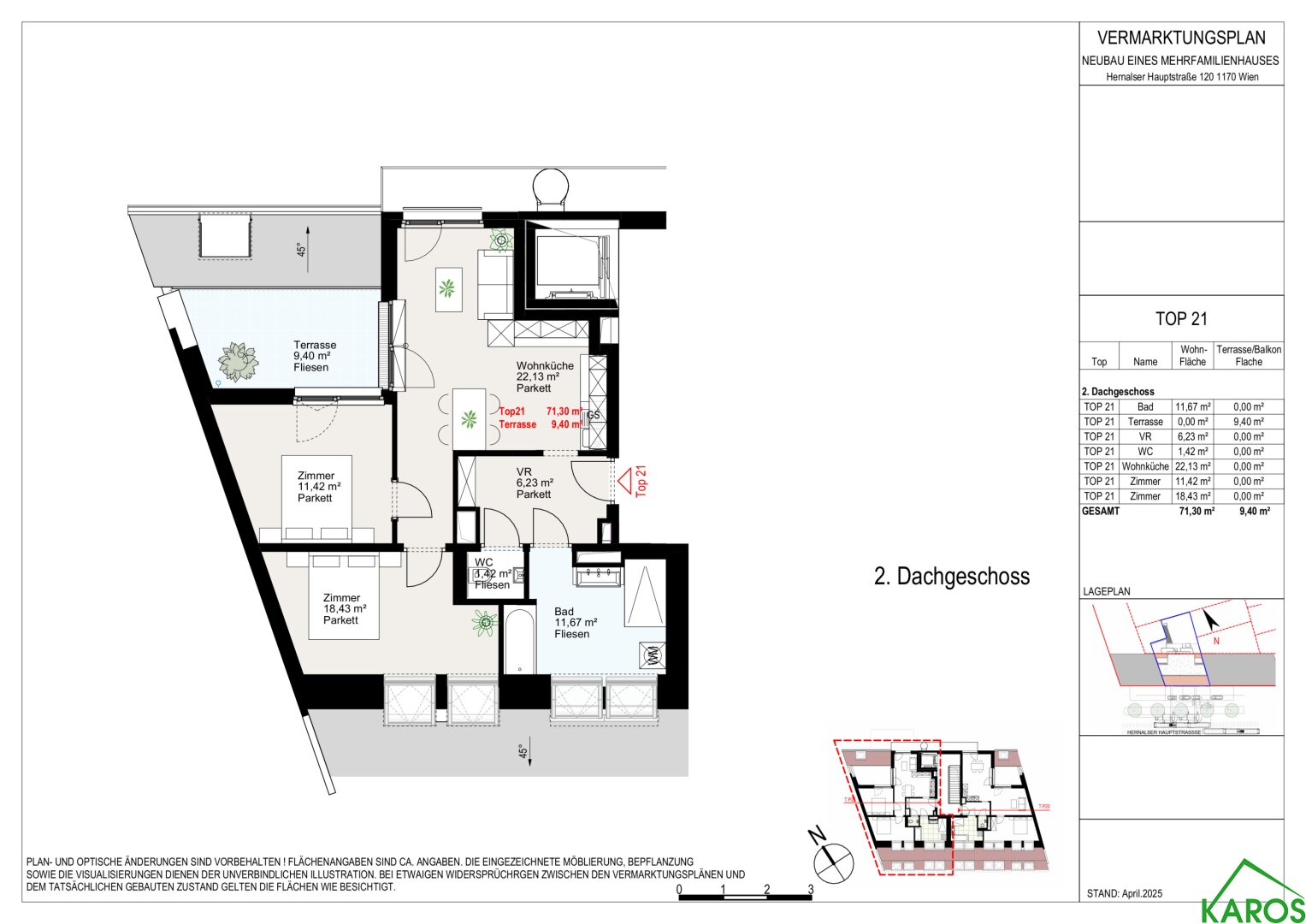
Derzeit entstehen unmittelbar auf der Hernalser Haupstraße 120, 20 hochwertige Mietwohnungen zwischen 35 und 82 m². Sämtliche Einheiten sind mit einer modernen Einbauküche ausgestattet und verfügen teilweise über Balkone oder Terrassen.
Das Wohnhaus ist mit einem behindertengerechten Lift und einer Zentralheizung, die ökologisch mittels Luftwärmepumpe betrieben wird, ausgestattet.
Weiters befindet sich ein Kinderwagen- und Fahrradabstellraum im Erdgeschoss des Hauses und es stehen 4 Stk. Stellplätze zur Anmietung im Hof zur Verfügung. Die Einlagerungsräume befinden sind im Kellergeschoß.
Geschäfte des täglichen Bedarfs sind fussläufig erreichbar und auch Schulen und Ärzte befinden sich in unmittelbarer Nähe.
Befristeter Hauptmietvertrag auf die Dauer von 5 Jahren!
Hochwertige Ausstattung:
- moderne Einbauküche
- Parkettböden Eiche
- Fußbodenheizung
- Klimatisierung im DG mittels Betonkern/Bauteilaktivierung
- Fenster: Kunststoff/Alu- Isolierglas
- Sonnenschutz: außenliegende Raffstore-Lamellen
Wärme-/Kältekosten-Direktverrechnung erfolgt durch die Fa. TECHEM!
Derzeitige mtl. Akontobeträge pro m² NFL brutto:
- BK-Heizung: € 1,20/qm
- BK-Warmwasser: € 0,25/qm
- BK-Kaltwasser: 0,30/qm
- Kälte: € 0,40/qm
Klimatisierung nur in den TOPS: 17, 18, 19, 20 und 21.
Gerne übermitteln wir Ihnen auf Anfrage weitere Detailunterlagen!
Wir weisen darauf hin, dass zwischen dem Vermittler und dem zu vermittelnden Dritten ein familiäres oder wirtschaftliches Naheverhältnis besteht.
Der Immobilienmakler erklärt, dass er – entgegen dem in der Immobilienwirtschaft üblichen Geschäftsgebrauch des Doppelmaklers – einseitig nur für den Vermieter tätig ist.
Hinweis: „Bitte haben Sie dafür Verständnis, dass wir Ihnen aufgrund des Fern- und Auswärtsgeschäfte-Gesetzes - FAGG (BGBI. I Nr. 33/2014), Unterlagen zu unseren Objekten erst dann zusenden können, wenn Sie bestätigen, dass Sie, als Verbraucher, unser sofortiges Tätigwerden wünschen und über die Rücktrittsrechte (§ 11 FAGG) aufgeklärt wurden.


