Beschreibung:
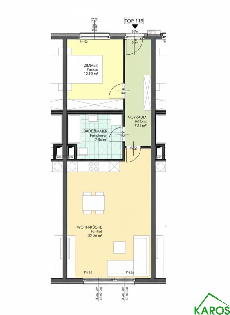
Moderne 2-Zimmer-Neubauwohnung beim Waldmüllerpark – 61,60 m² im 3. Liftstock
Diese lichtdurchflutete 2‑Zimmer-Wohnung befindet sich im 3. Liftstock eines modernen Neubaus und überzeugt durch hochwertige Ausstattung, eine durchdachte Raumaufteilung und eine hervorragende Lage in unmittelbarer Nähe zum Waldmüllerpark.
Die Wohnanlage bietet ein komfortables Umfeld mit barrierefreien Liften, sehr guter Verkehrsanbindung sowie zahlreichen Freizeit- und Einkaufsmöglichkeiten in Gehdistanz. Ideal für Singles, Paare oder als stilvolle Stadtwohnung.
Ausstattung & Wohnkomfort
Die Wohnung verfügt über eine moderne Einbauküche, edle Parkettböden und helle Räume. Das Badezimmer ist mit einer Badewanne ausgestattet und sorgt für einen entspannten Start in den Tag. Hochwertige Fenster mit 3-fach-Verglasung bieten optimalen Schallschutz und Energieeffizienz.
Fakten:
- 2‑Zimmer‑Neubauwohnung
- 61,60 m² Wohnfläche
- 3. Liftstock
- Moderne Einbauküche
- Badezimmer mit Badewanne
- Eiche-Massivparkett in den Wohnräumen
- Feinsteinzeug in Bad & WC
- Kunststofffenster mit 3-fach-Isolierverglasung
- Fernwärme-Zentralheizung (Direktverrechnung ISTA)
- Telefonanschluss & Telekabelanschluss
- Gegensprechanlage
Haus & Allgemeinbereiche
- Zwei barrierefreie Lifte
- Zugang von Fernkorngasse und Sonnleithnergasse
- Garage mit 15 Stellplätzen im Erdgeschoss
- Fahrrad- und Kinderwagenräume
- Einlagerungsraum pro Wohnung im Kellergeschoss
Lage & Verkehr
- Direkt beim Waldmüllerpark
- Geschäfte des täglichen Bedarfs fußläufig erreichbar
- Nähe zum Hauptbahnhof / neues Einkaufszentrum
- Buslinie 14A direkt vor der Haustür → schnelle Verbindung zum Matzleinsdorfer Platz (S1, S2, S60, S80)
- Mit dem Auto in wenigen Minuten auf der A23
Wir weisen darauf hin, dass zwischen dem Vermittler und dem zu vermittelnden Dritten ein familiäres oder wirtschaftliches Naheverhältnis besteht.
Der Immobilienmakler erklärt, dass er – entgegen dem in der Immobilienwirtschaft üblichen Geschäftsgebrauch des Doppelmaklers – einseitig nur für den Vermieter tätig ist.
Hinweis: „Bitte haben Sie dafür Verständnis, dass wir Ihnen aufgrund des Fern- und Auswärtsgeschäfte-Gesetzes - FAGG (BGBI. I Nr. 33/2014), Unterlagen zu unseren Objekten erst dann zusenden können, wenn Sie bestätigen, dass Sie, als Verbraucher, unser sofortiges Tätigwerden wünschen und über die Rücktrittsrechte (§ 11 FAGG) aufgeklärt wurden.



