Beschreibung:
Willkommen in Ihrem neuen Zuhause im begehrten 23. Wiener Gemeindebezirk! Diese charmante 2-Zimmer-Wohnung bietet auf gemütlichen 59,83 m² Wohnfläche alles, was das Herz begehrt – ideal für Singles, Paare oder kleine Familien, die Wert auf Komfort und eine ausgezeichnete Lage legen.
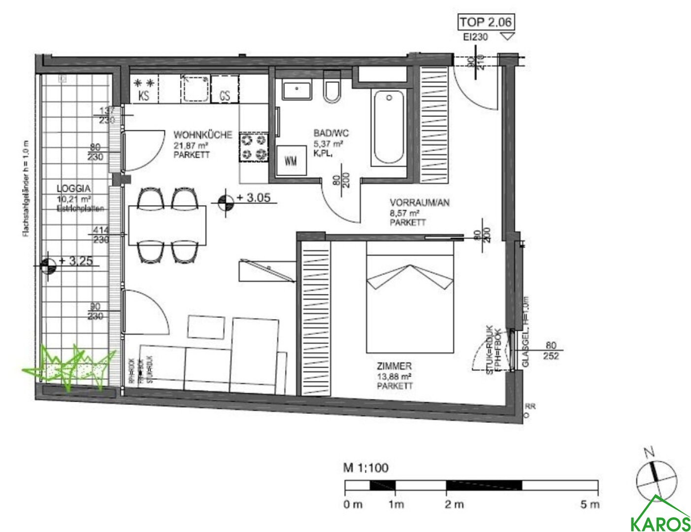
Die Wohnung besticht durch einen durchdachten Grundriss, der lichtdurchflutete Räume schafft und ein angenehmes Wohnambiente garantiert. Der Parkettboden verleiht den Zimmern eine warme und elegante Atmosphäre. Die moderne Einbauküche ist bestens ausgestattet und lädt zum gemeinsamen Kochen und Verweilen ein. Ein besonderes Highlight ist der sonnige Balkon, der zum Entspannen im Freien einlädt und Platz für gemütliche Stunden an der frischen Luft bietet.
Für Ihr Wohlbefinden sorgt die Fußbodenheizung, die in Kombination mit der zentralen Gasheizung für eine behagliche Wärme sorgt – egal ob in der kalten Jahreszeit oder an kühlen Abenden. Der Personenaufzug erleichtert den Alltag, besonders wenn Sie mit Einkäufen oder in der Garage geparktem Auto unterwegs sind. Apropos Garage: Ein eigener Stellplatz ist in der Garage zumietbar, sodass Sie sich keine Sorgen um die Parkplatzsuche machen müssen.
Die Lage könnte nicht besser sein: Nur wenige Gehminuten entfernt finden Sie eine hervorragende Infrastruktur. Ärzte, Apotheken und eine Klinik gewährleisten eine erstklassige medizinische Versorgung. Für Familien sind Schulen und Kindergärten bequem erreichbar. Einkaufsmöglichkeiten wie Supermärkte, Bäckereien und ein Einkaufszentrum sind ebenfalls in unmittelbarer Nähe und machen den Alltag angenehm und zeitsparend.
Die Verkehrsanbindung ist optimal – Buslinien und der nahegelegene Bahnhof bieten schnelle Verbindungen in die Wiener Innenstadt und darüber hinaus. So sind Sie bestens vernetzt und können flexibel und stressfrei Ihren Alltag gestalten.
Diese Wohnung ist ein echtes Juwel für all jene, die modernes Wohnen mit praktischer Lage und umfassender Infrastruktur verbinden möchten. Die monatliche Miete von 1.090,98 € macht dieses Angebot besonders attraktiv.
Zögern Sie nicht und sichern Sie sich Ihr neues Zuhause in 1230 Wien – hier erwartet Sie Lebensqualität auf höchstem Niveau! Vereinbaren Sie noch heute einen Besichtigungstermin und überzeugen Sie sich selbst von den Vorzügen dieser Immobilie. Wir freuen uns auf Ihre Anfrage!
Wir weisen darauf hin, dass zwischen dem Vermittler und dem zu vermittelnden Dritten ein familiäres oder wirtschaftliches Naheverhältnis besteht.
Der Immobilienmakler erklärt, dass er – entgegen dem in der Immobilienwirtschaft üblichen Geschäftsgebrauch des Doppelmaklers – einseitig nur für den Vermieter tätig ist.
Hinweis: „Bitte haben Sie dafür Verständnis, dass wir Ihnen aufgrund des Fern- und Auswärtsgeschäfte-Gesetzes - FAGG (BGBI. I Nr. 33/2014), Unterlagen zu unseren Objekten erst dann zusenden können, wenn Sie bestätigen, dass Sie, als Verbraucher, unser sofortiges Tätigwerden wünschen und über die Rücktrittsrechte (§ 11 FAGG) aufgeklärt wurden.



