Beschreibung:
Willkommen in Ihrem neuen Zuhause im Herzen von Wien! Diese bezaubernde 2-Zimmer-Wohnung in der 2. Etage bietet Ihnen nicht nur eine hervorragende Lage, sondern auch einen Lebensstil, der Komfort und Bequemlichkeit vereint.
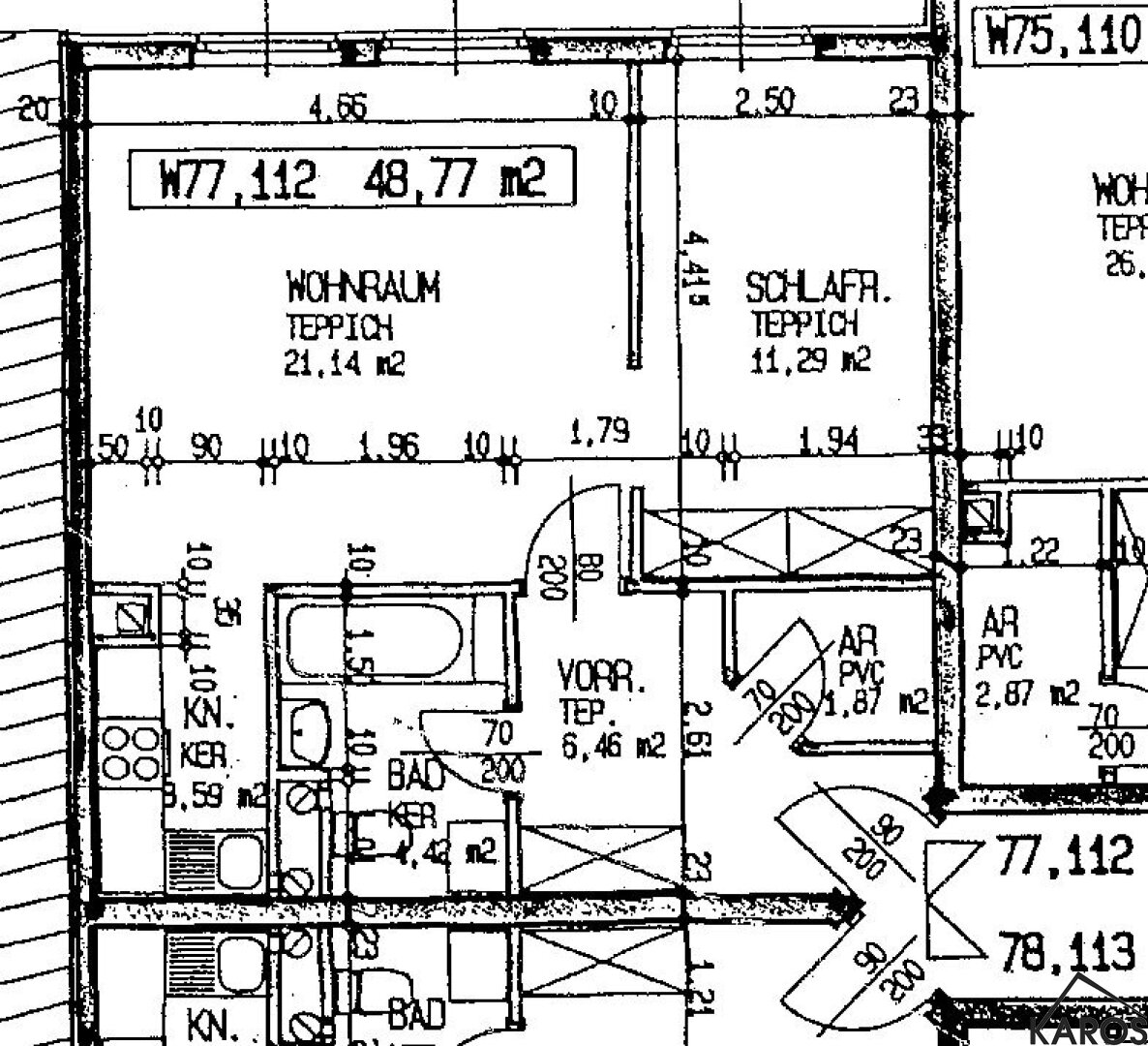
Mit einer großzügigen Fläche von 48,3 m² ist diese Wohnung ideal für Singles, Paare oder kleine Familien. Die durchdachte Raumaufteilung schafft eine einladende Atmosphäre und bietet Ihnen die perfekte Kulisse für unvergessliche Momente. Der lichtdurchflutete Wohnbereich mit einem atemberaubenden Fern- und Grünblick lädt zum Entspannen und Wohlfühlen ein.
Die moderne Einbauküche ist ein Highlight dieser Wohnung und ausgestattet mit allem, was Sie für die Zubereitung Ihrer Lieblingsgerichte benötigen. Hier werden Kochabende mit Freunden und Familie zu einem besonderen Erlebnis.
Ein weiteres Plus dieser Immobilie ist das gepflegte Badezimmer mit Badewanne, das Ihnen die Möglichkeit bietet, nach einem langen Tag zu entspannen und zu regenerieren. Die zentrale Fernwärme und die DV- / EDV-Verkabelung sorgen zudem für hohen Wohnkomfort und moderne Annehmlichkeiten.
Die Wohnung ist nicht nur ein Schmuckstück, sondern bietet auch praktische Vorteile. Ein Personenaufzug erleichtert den Zugang zur Wohnung, und eine Garage steht Ihnen zur Verfügung – ein unschätzbarer Vorteil in der Stadt.
Die Verkehrsanbindung könnte nicht besser sein: Busse, U-Bahn, Straßenbahn und sogar ein Bahnhof befinden sich in unmittelbarer Nähe. So sind Sie schnell und unkompliziert mit der ganzen Stadt verbunden.
In der Umgebung finden Sie alles, was Sie für den täglichen Bedarf benötigen. Ob Arzt, Apotheke, Klinik, Schule oder Kindergarten – alles ist fußläufig erreichbar. Supermärkte, Bäckereien und ein Einkaufszentrum sorgen dafür, dass Sie Ihr Leben in dieser lebendigen Nachbarschaft in vollen Zügen genießen können.
Die Miete von nur 953,96 € macht dieses Angebot besonders attraktiv. Lassen Sie sich diese Gelegenheit nicht entgehen!
Vereinbaren Sie noch heute einen Besichtigungstermin und überzeugen Sie sich selbst von dieser wunderbaren Wohnung in 1100 Wien. Ihr neues Zuhause wartet auf Sie!
Wir weisen darauf hin, dass zwischen dem Vermittler und dem zu vermittelnden Dritten ein familiäres oder wirtschaftliches Naheverhältnis besteht.
Der Immobilienmakler erklärt, dass er – entgegen dem in der Immobilienwirtschaft üblichen Geschäftsgebrauch des Doppelmaklers – einseitig nur für den Vermieter tätig ist.
Hinweis: „Bitte haben Sie dafür Verständnis, dass wir Ihnen aufgrund des Fern- und Auswärtsgeschäfte-Gesetzes - FAGG (BGBI. I Nr. 33/2014), Unterlagen zu unseren Objekten erst dann zusenden können, wenn Sie bestätigen, dass Sie, als Verbraucher, unser sofortiges Tätigwerden wünschen und über die Rücktrittsrechte (§ 11 FAGG) aufgeklärt wurden.



