Beschreibung:
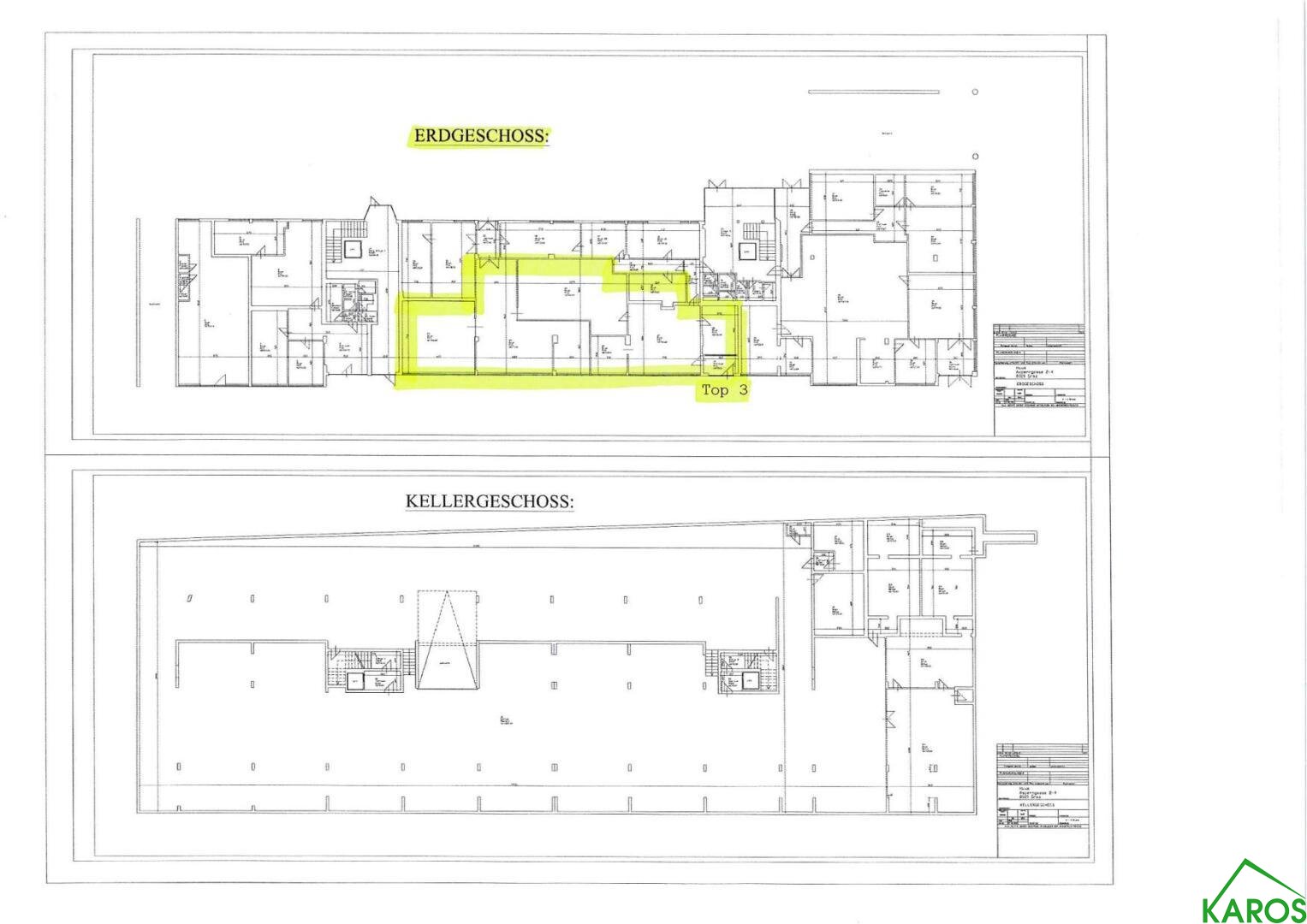
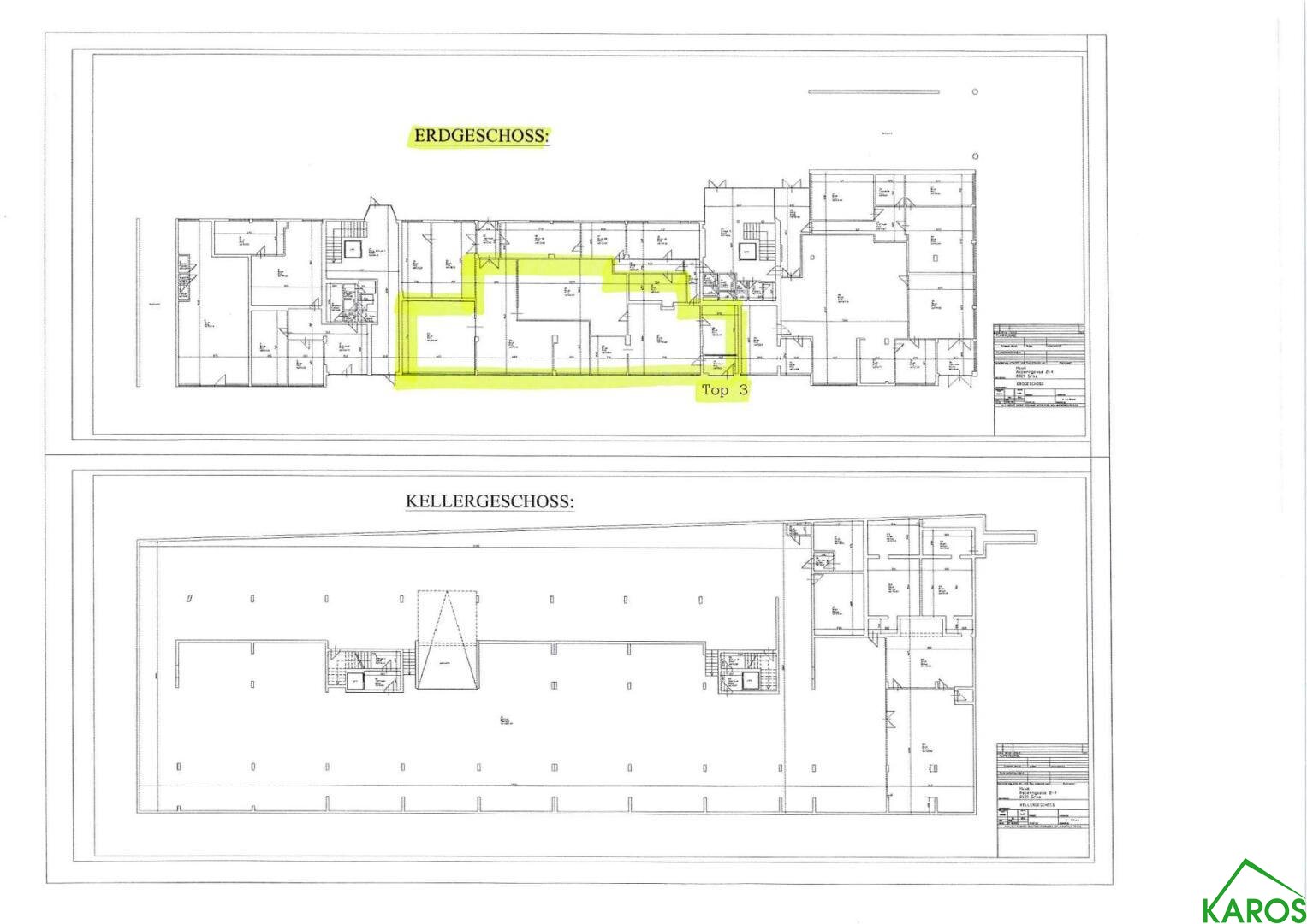
Willkommen in Ihrem neuen Geschäftslokal im Herzen von Graz, das Ihnen nicht nur eine großzügige Fläche von 382,3 m² bietet, sondern auch die ideale Gelegenheit, Ihre Geschäftsideen in einer der dynamischsten Städte Österreichs zu verwirklichen.
Dieses Einzelhandelsgeschäft befindet sich im Erdgeschoss eines modernen Gebäudes und überzeugt durch seine hervorragende Lage in 8020 Graz. Hier genießen Sie eine hohe Fußgängerfrequenz und profitieren von der Sichtbarkeit, die Ihr Unternehmen benötigt, um erfolgreich zu sein.
Die monatliche Miete ist nicht nur fair, sondern auch eine Investition in Ihre Zukunft. Der großzügige Raum ermöglicht Ihnen, Ihre Produkte oder Dienstleistungen optimal zu präsentieren und eine einladende Atmosphäre für Ihre Kunden zu schaffen.
Die Verkehrsanbindung könnte nicht besser sein. Mit mehreren Bus- und Straßenbahnlinien in unmittelbarer Nähe sowie einem Bahnhof, der schnell erreichbar ist, garantieren Sie Ihren Kunden eine bequeme Anreise. Egal, ob Ihre Kunden mit dem Auto, dem öffentlichen Verkehr oder zu Fuß kommen – die Erreichbarkeit ist gewährleistet.
Die Umgebung des Geschäftslokals ist geprägt von einem breiten Angebot an Infrastrukturen. In unmittelbarer Nähe finden Sie Ärzte, Apotheken, Kliniken und Krankenhäuser, die nicht nur Ihre Mitarbeiter, sondern auch Ihre Kunden ansprechen. Schulen, Kindergärten sowie Universitäten und höhere Schulen sorgen dafür, dass Sie eine diverse Zielgruppe ansprechen können. Supermärkte, Bäckereien und ein Einkaufszentrum in der Nähe bieten zusätzliche Anreize für vorbeikommende Kunden, bei Ihnen zu stöbern und einzukaufen.
Nutzen Sie diese einmalige Chance, Ihr Geschäft in einer lebhaften und attraktiven Gegend von Graz zu etablieren. Lassen Sie sich von der Vielfalt und dem Potenzial dieser Lage überzeugen. Ob Sie ein bestehendes Geschäft erweitern oder eine neue Unternehmung starten möchten – dieses Geschäftslokal bietet Ihnen die perfekte Grundlage dafür.
Zögern Sie nicht länger! Kontaktieren Sie uns noch heute, um einen Besichtigungstermin zu vereinbaren und entdecken Sie, wie dieses Geschäftslokal Ihre Visionen zum Leben erwecken kann. Graz wartet auf Sie!
Wir weisen darauf hin, dass zwischen dem Vermittler und dem zu vermittelnden Dritten ein familiäres oder wirtschaftliches Naheverhältnis besteht.
Der Vermittler ist als Doppelmakler tätig.
Hinweis: „Bitte haben Sie dafür Verständnis, dass wir Ihnen aufgrund des Fern- und Auswärtsgeschäfte-Gesetzes - FAGG (BGBI. I Nr. 33/2014), Unterlagen zu unseren Objekten erst dann zusenden können, wenn Sie bestätigen, dass Sie, als Verbraucher, unser sofortiges Tätigwerden wünschen und über die Rücktrittsrechte (§ 11 FAGG) aufgeklärt wurden.



