Plz

Nutzfläche (m²)

HMZ/m² (netto)

HELLES NEUBAUBÜRO *INKL. KÜCHE + LOGGIA*

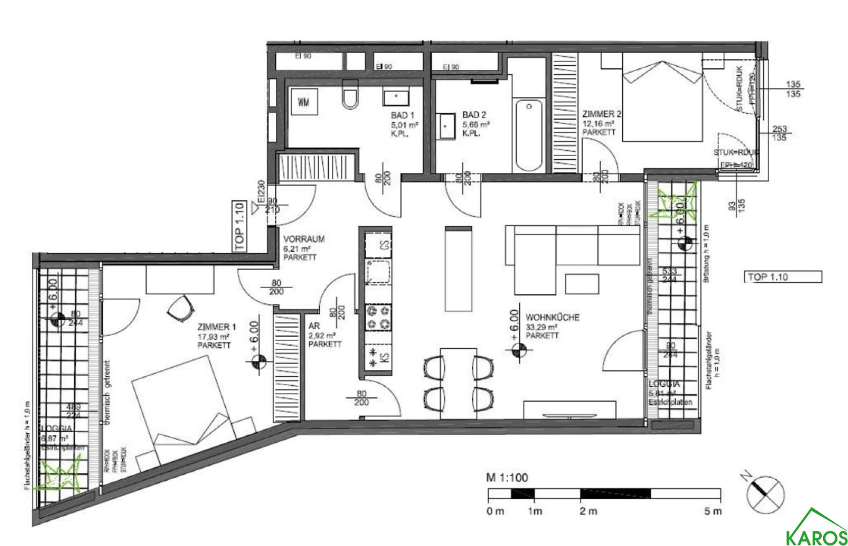
Kerndaten: 95,86 m² / 3 Zimmer / 1230 Wien / Gesamtmiete brutto: € 1.729,31


Beschreibung:

Moderne Neubauwohnung zu Büro- und Wohnzwecken anzumieten (befristet auf 5 Jahre).

Ihre Vorteile im Überblick:

  • EINBAUKÜCHE 
  • BK inkl. Heizung & Warmwasser
  • 1 Loggia mit 6,87 m² & 1 Loggia mit  5,81 m² 
  • intelligente Raumaufteilung
  • zeitlose und hochwertige Ausstattung für höchste Ansprüche
  • raumhohe Fenster für ein großzügiges Wohngefühl 
  • Fußbodenheizung 
  • Parkett, Feinsteinzeug 
  • Sicherheit: einbruchssichere Türe + Gegensprechanlage
  • Keller, Fahrrad- & Kinderwagenraum
  • optional Tiefgaragenstellplatz 120,- € inkl.
  • im Atrium des Hauses befindet sich ein begrünter Innenhof
  • begrünte Dächer für ein optimales Mikroklima - GRÜNDACH
  • Sonnenkollektoren auf dem Dach zur Unterstützung der Warmwasseraufbereitung
  • Vorbereitung für Außenrollläden
  • Glasfaseranbindung
  • kulinarische Vielfalt + exzellente Nahversorgung 
  • optimale Anbindung an Nah- und Fernverkehr  
  • sehr gute Infrastruktur (Ärzte, private & öffentliche Schulen)
  • Erholungs- und Freizeitgebiet  "Liesingbach"

 

Lage:

Die äußerst attraktive Lage des Neubaus liegt einerseits an der unmittelbaren Umgebung zum Liesingbach, als Erholungs- und Freizeitgebiet, als auch an der sehr günstigen Verkehrsanbindung und sehr guten Infrastruktur (Ärzte, Apotheken, Schulen).

Das zentral gelegene Neubauwohnhaus besticht vor allem durch seinen, im Zentrum des Wohnhauses gelegenen, schönen und vor allem grünen Innenhof.

Geschäfte des täglichen Bedarfs sind fußläufig erreichbar und auch das Einkaufscenter "Riverside" ist in unmittelbarer Nähe. Der Liesinger Platz mit der Station "Liesing" und den Schnellbahn-Linien ist 800 Meter entfernt und in 7-8 Minuten erreichbar. Mit dem PKW erreicht man binnen drei Minuten die Auffahrt „Brunn am Gebirge“ der Außenringautobahn A21.


Bei Interesse, weiteren Fragen oder dem Wunsch nach einer Besichtigung, stehe ich Ihnen gerne zur Verfügung.
 

Wir weisen darauf hin, dass zwischen dem Vermittler und dem zu vermittelnden Dritten ein familiäres oder wirtschaftliches Naheverhältnis besteht.

Hinweis: „Bitte haben Sie dafür Verständnis, dass wir Ihnen aufgrund des Fern- und Auswärtsgeschäfte-Gesetzes - FAGG (BGBI. I Nr. 33/2014), Unterlagen zu unseren Objekten erst dann zusenden können, wenn Sie bestätigen, dass Sie, als Verbraucher, unser sofortiges Tätigwerden wünschen und über die Rücktrittsrechte (§ 11 FAGG) aufgeklärt wurden.

  • Verfügbarkeit: sofort
  • Objekt-Nr: 871110
  • Adresse: Breitenfurter Straße 320
  • Plz: 1230
  • Ort: Wien
  • Energiekennzahlen: 41,8 kWh/m²a
  • Nutzfläche (m²): 95,86
  • Loggia: 12,68 m²
  • Hauptmietzins (netto): € 1.054,46
  • Betriebskosten: € 210,89
  • Umsatzsteuer: € 253,22
  • Gesamtmiete (brutto): € 1.729,31
  • HMZ/m² (netto): € 11,00
  • Mietdauer: 5 Jahre
  • Kaution: € 6.900,00
  • Provision: 5.187,94 € inkl. 20% USt.
  • Haustyp: NEUBAU
  • Geschoss: 2. OG
  • Anz. Zimmer: 3
  • Heizungsart: FUSSBODEN / ZENTRAL / Array
  • Personenaufzug: ja

Terminvereinbarung

Nehmen Sie gleich Kontakt auf und senden Sie eine Nachricht uns!

Powered by ChronoForms - ChronoEngine.com

Share this post: