Diese Seite drucken

EBENERDIGES GESCHÄFTSLOKAL *ERSTBEZUG*

Kerndaten: / Zimmer / 1170 Wien / Gesamtmiete brutto: € 3.483,44


Beschreibung:

Zur unbefristeten Anmietung gelangt das ebenerdige Geschäftslokal auf der Hernalser Hauptstraße:

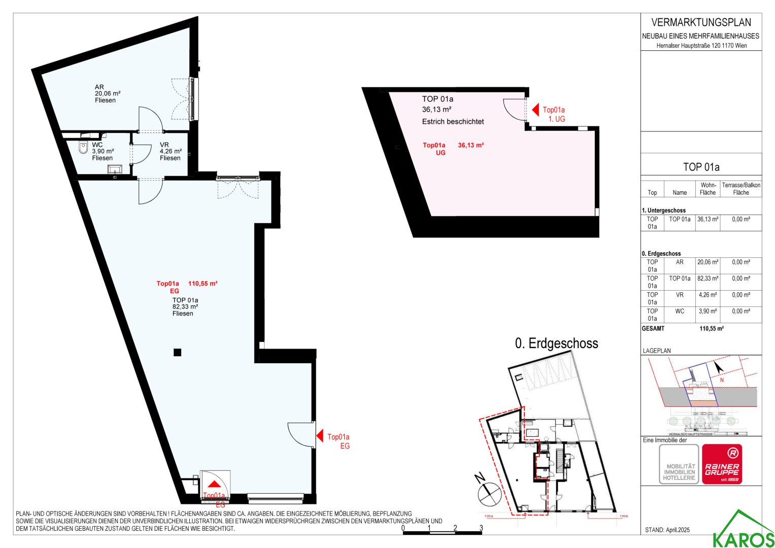
  • 110,55 m² Geschäftsfläche + 36,13 m² Lager im Kellergeschoss
  • großzügige Portalverglasung mit Sonnenschutzglas
  • Div. Büroräume, Nebenräume, Sanitärräume laut beil. Plan
  • Beläge: Marazzi Fliesen
  • Fußbodenheizung
  • Kühlung mittels Fan Coils
  • Teeküchenanschluss vorhanden

 

Wärme-/Kältekosten-Direktverrechnung erfolgt durch die Fa. TECHEM!

Derzeitige mtl. Akontobeträge pro m² NFL brutto:

  • BK-Heizung: € 1,20/qm
  • BK-Warmwasser: € 0,25/qm
  • BK-Kaltwasser: 0,30/qm


Gerne übermitteln wir Ihnen auf Anfrage weitere Detailunterlagen!
 

Bitte haben Sie Verständnis dafür, dass die Nutzflächen durch Anpassung der Polierplanung noch geringfügig korrigiert werden können.

Wir weisen darauf hin, dass zwischen dem Vermittler und dem zu vermittelnden Dritten ein familiäres oder wirtschaftliches Naheverhältnis besteht.

Der Vermittler ist als Doppelmakler tätig.

Hinweis: „Bitte haben Sie dafür Verständnis, dass wir Ihnen aufgrund des Fern- und Auswärtsgeschäfte-Gesetzes - FAGG (BGBI. I Nr. 33/2014), Unterlagen zu unseren Objekten erst dann zusenden können, wenn Sie bestätigen, dass Sie, als Verbraucher, unser sofortiges Tätigwerden wünschen und über die Rücktrittsrechte (§ 11 FAGG) aufgeklärt wurden.

  • Objekt-Nr: 1201
  • Adresse: Hernalser Hauptstraße 120
  • Plz: 1170
  • Ort: Wien
  • Energiekennzahlen: 20,5 kWh/m²a
  • Hauptmietzins (netto): € 2.536,17
  • Betriebskosten: € 366,70
  • Umsatzsteuer: € 580,57
  • Gesamtmiete (brutto): € 3.483,44
  • HMZ/m² (netto): € 17,29
  • Mietdauer: unbefristet
  • Kaution: € 14.000,00
  • Provision: 3 Bruttomonatsmieten zzgl. 20% USt.
  • Geschoss: EG / +KG

Terminvereinbarung

Nehmen Sie gleich Kontakt auf und senden Sie eine Nachricht uns!

Powered by ChronoForms - ChronoEngine.com

Share this post: