Diese Seite drucken

EBENERDIGE GESCHÄFTSFLÄCHE - ZENTRALE LAGE!

Kerndaten: / Zimmer / 8020 Graz / Gesamtmiete brutto: € 7.431,91


Beschreibung:

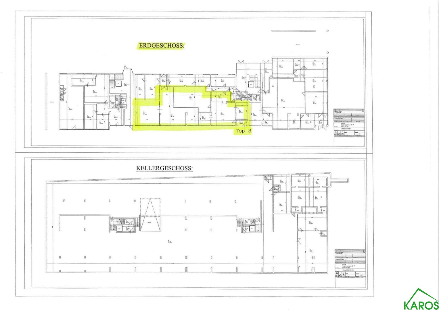
Zur Anmietung gelangt ein ebenerdiges Geschäftslokal, bestehend aus Top 3 und 4:

- befristeter Hauptmietvertrag (5 Jahre)

- grundsätzlich branchenfrei

- 382,30 m² NFL lt. Plan

- Gaszentralheizung 

- eigener Stromzähler

- € 13,00/m² netto + BK + USt

- 4 BMM Kaution

- 3 BMM Provision

- Vertragsvergebührung Finanzamt 

ANFRAGEN BITTE ÜBER DIESE PLATTFORM!

„Bitte haben Sie dafür Verständnis, dass wir Ihnen aufgrund des Fern- und Auswärtsgeschäfte-Gesetzes - FAGG (BGBI. I Nr. 33/2014), Unterlagen zu unseren Objekten erst dann zusenden können, wenn Sie bestätigen, dass Sie, als Verbraucher, unser sofortiges Tätigwerden wünschen und über die Rücktrittsrechte (§ 11 FAGG) aufgeklärt wurden.“

 

Wir weisen darauf hin, dass zwischen dem Vermittler und dem zu vermittelnden Dritten ein familiäres oder wirtschaftliches Naheverhältnis besteht.

Der Vermittler ist als Doppelmakler tätig.

Hinweis: „Bitte haben Sie dafür Verständnis, dass wir Ihnen aufgrund des Fern- und Auswärtsgeschäfte-Gesetzes - FAGG (BGBI. I Nr. 33/2014), Unterlagen zu unseren Objekten erst dann zusenden können, wenn Sie bestätigen, dass Sie, als Verbraucher, unser sofortiges Tätigwerden wünschen und über die Rücktrittsrechte (§ 11 FAGG) aufgeklärt wurden.

  • Objekt-Nr: 102003
  • Adresse: Asperngasse 2
  • Plz: 8020
  • Ort: Graz
  • Energiekennzahlen: 21,6 kWh/m²a
  • Hauptmietzins (netto): € 4.969,90
  • Betriebskosten: € 1.032,21
  • Umsatzsteuer: € 1.200,42
  • Gesamtmiete (brutto): € 7.431,91
  • HMZ/m² (netto): € 13,00
  • Mietdauer: 5 Jahre
  • Kaution: € 29.800,00
  • Provision: 3 Bruttomonatsmieten zzgl. 20% USt.
  • Geschoss: EG

Terminvereinbarung

Nehmen Sie gleich Kontakt auf und senden Sie eine Nachricht uns!

Powered by ChronoForms - ChronoEngine.com

Share this post: